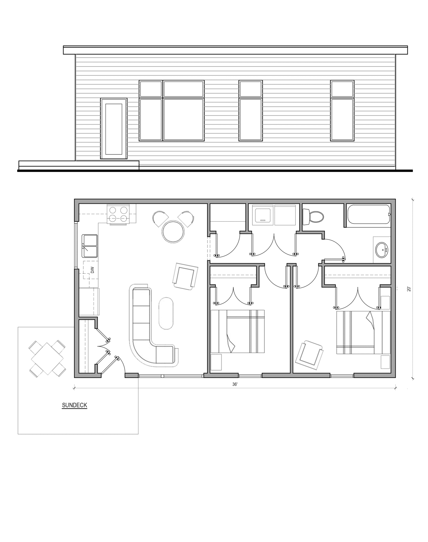
The 720
Dimensions: 20’ W X 36’ L
Total Square Feet: 720 sq. ft.
Features: 2 Bedrooms, 1 Bath
Features
Space for living, room for guests. The 720 offers two bedrooms and a full-sized kitchen in an open-concept layout filled with natural light from large windows and vaulted ceilings. A dedicated laundry nook, generous storage, and a private deck make daily life easy and comfortable — all on one accessible floor. Whether you’re welcoming a visiting grandchild or simply enjoying a little extra space, the 720 is a complete home designed around the way you actually live. Tarion warranty registered and built to last.
Price starts at $200,000 (excluding servicing) plus HST.

Need Help? Ready to Go?
Book a Phone CallSimilar Small Homes
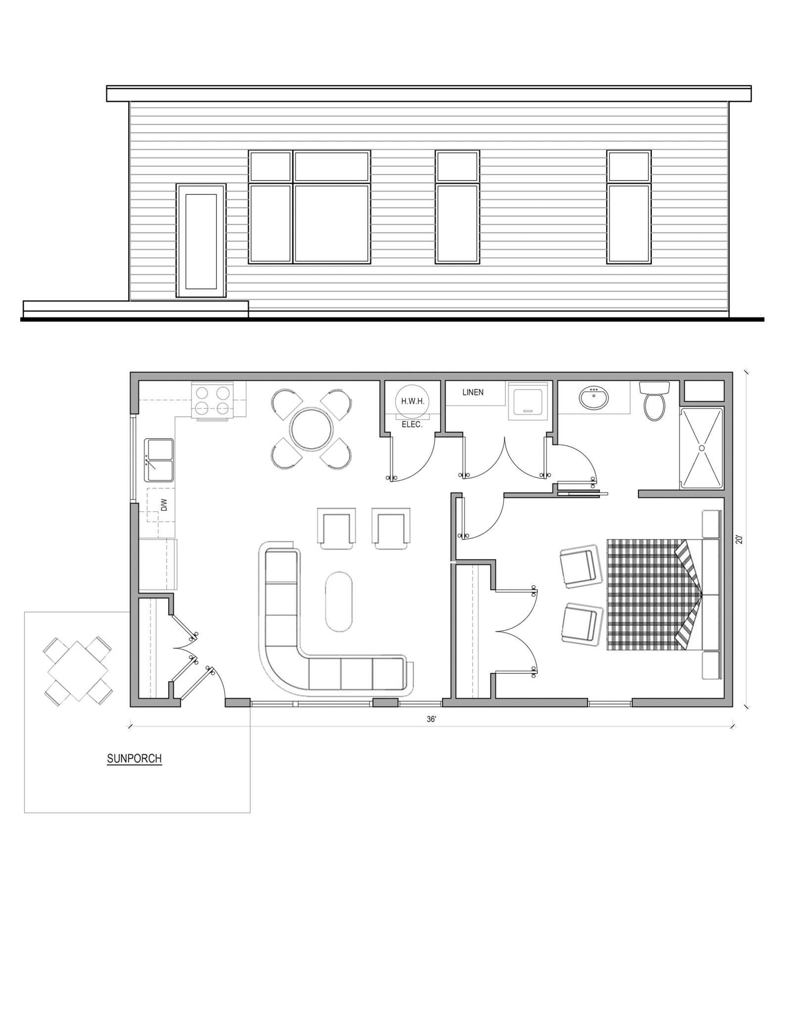
The 800
Two bedrooms with a full sized kitchen, laundry nook, deck, and linen storage. Designed for independent, single-floor living close to family.

The 2079
Stylish and charming, this small home has an inviting entry and inviting curb appeal. Designed for independent, single-floor living close to family.
The 754
Each bedroom has an ensuite bath with a walk-in shower vanity and private toilet. Designed for independent, single-floor living close to family.
The 395
Stylish and charming, this small home has an inviting entry and amazing curb appeal. Designed for independent, single-floor living close to family.
